Dom w zabudowie jednorodzinnej na poznańskim Ptk!

Dom (Wolnostojący) na sprzedaż
2 599 000,00 PLN , Pow. 298,77 m2
Drukuj ofertę
Drukuj ofertę
Typ nieruchomości:
Dom
Powierzchnia:
298,77 m2
Typ transakcji:
sprzedaż
Liczba pokoi:
6
Lokalizacja:
Poznań Piątkowo , Jana Sokołowskiego
Rok budowy:
1970
Liczba pięter:
1
Numer oferty:
933560
Powierzchnia działki:
721 m2
Cena za m2:
8 699,00 PLN
Oferta dostępna tylko u nas!
Kupujący nie płaci prowizji - wynagrodzenie doradcy pokrywa sprzedający!

Serdecznie zapraszam do zapoznania się z ofertą domu wolnostojącego położonego w wyjątkowej lokalizacji na mapie Poznania - na poznańskim Piątkowie przy ul. Sokołowskiego.  Bliskość pełnej infrastruktury osiedla - żłobki, przedszkola, szkoły, sklepy czy  usługi to ogromne udogodnienie dla mieszkańców a specyfika nieruchomości poprzez wielkość działki, usytuowanie w intymnej części osiedla oraz otaczającą budynek zieleń  gwarantuje ciszę i spokój nowym właścicielom! Dom zaprojektowany został z myślą o możliwości wykorzystania części powierzchni w ramach usług Oddany do użytkowania został w latach 1960-70.

Dom o powierzchni użytkowej około 276,93 m2 wybudowany został w 1986 roku oraz garaż wolnostojący o powierzchni 21,84 m2 znajdują się na działce o powierzchni około 721 m2. Niewątpliwym atutem nieruchomości jest przestronny ogród, słoneczny i ustawny salon, kuchnia z jadalnią, funkcjonalny rozkład pomieszczeń. Dodatkowo w bryle budynku została wydzielona kawalerka z niezależnym wejściem o powierzchni około 27,5 m2.

OPIS NIERUCHOMOŚCI:

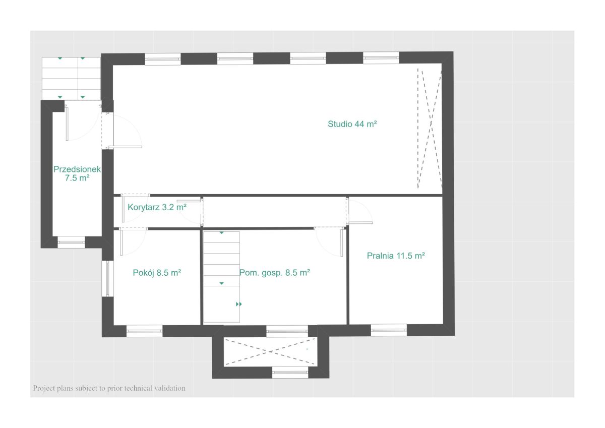
Poziom -1 dom:
• Korytarz powierzchnia około 3,2 m2
• Pokój powierzchnia około 8,5 m2
• Pomieszczenie gospodarcze powierzchnia około 8,5 m2 
• Pralnia powierzchnia około 11,5 m2 
• Studio powierzchnia około 44 m2 

Parter dom
• Korytarz powierzchnia około 15 m2
• Łazienka z toaletą powierzchnia około 3,5 m2
• Kuchnia powierzchnia około 8,5 m2
• Jadalnia powierzchnia około 20 m2
• Salon powierzchnia około 25 m2
• Sypialnia powierzchnia około 12,6 m2

Kawalerka 
• Pokój powierzchnia około 18,5 m2
• Kuchnia powierzchnia około 5,5 m2 
• Łazienka powierzchnia około 3,5 m2 

Pietro dom:
• Sypialnia powierzchnia około  28 m2
• Sypialnia powierzchnia około 12 m2
• Korytarz powierzchnia około 17 m2
• Łazienka z toaletą powierzchnia około 10 m2

Standard wykończenia

• okna - PCV
• dachówka 
• ogrzewanie gazowe - piec dwufunkcyjny 

OPIS LOKALIZACJI
W bliskiej odległości znajdziemy:
• Żłobek i Przedszkole Pozytywnego Rozwoju w odległości około 280m (4 min)
• Przedszkole nr 189 w odległości około 600m (8 min)
• Akademia Edukacji Montessori Małpi Gaj w odległości około 600m (9 min)
• Poznański Zespół Żłobków w odległości około 650m (9 min)
• Szkoła Podstawowa nr 34 im. Wojska Polskiego odległości około 800m (11 min)

• Zapiekanki Piątkowo w odległości około 250m (4 min)
• Magiczne ciasta w odległości około 350m (5 min)
• Jamo Sushi w odległości około 350m (5 min)
• Bar Nam Kim - Kuchnia Chińska i Wietnamska w odległości około 400m (6 min)
• Na Górce w odległości około 450m (6 min)
• Cukiernia Jagódka w odległości około 500m (7 min)
• Lodziarnia Pastelowa w odległości około 500m (7 min)
• Para Bar Piątkowo w odległości około 750m (11 min)

• Park przy osiedlu Botanika w odległości około 500m (7 min)
• Plac zabaw w odległości około 500m (7 min)

• Warzywniak u Oleńki w odległości około 200m (3 min)
• Intermarche w odległości około 400m (6 min)
• Biedronka w odległości 400m (6 min)
• Fawor SPC Sklep firmowy w odległości około 500m (7 min)

• Kościół rzymskokatolicki pw. Opatrzności Bożej około 950m (13 min)
• w okolicy także fryzjer, pizzeria, restauracje oraz apteki.

Komunikacja:
• linie autobusowe: 174, 185, 191 - przystanek Stoińskiego w odległości około 180m (2 min)
• linie tramwajowe: 12,14,15,16,201, 202, 204 - przystanek PST Kurpińskiego w odległości około 550m (8 min)

FORMA WŁASNOŚCI - Pełna własność
CENA - 2 599 000 zł

Oferta skierowana również dla klientów kredytowych, którym zapewniamy kompleksową, sprawną oraz skuteczną obsługę całego procesu kredytowania.

Zapraszamy na prezentacje!
Informacja dla Pośredników - współpracujemy przy każdej ofercie!
Adres strony www: https:// NULL
Nieprawidłowy adres E-mail